Avalon Visionary

The Avalon Visionary delivers an intimate setting for 128 passengers, with two full decks of suites featuring wall-to-wall panoramic windows that transform the living space into a unique open-air balcony. With 200 square feet, Panorama Suites are more than 30% larger than the industry standard, giving you the rare opportunity to wake each morning to the changing scenery. Onboard amenities include complimentary computer use in public areas and Wi-Fi access, a fitness centre, and a spacious Sky Deck with premium lounge chairs, shade system, whirlpool, and the delightful Sky Grill.

Ship Calendar

Destination Nov Dec Jan 2026 Mar Mar Apr May Jun Jul Aug Sep Oct
River Cruises -- -- --

Ship Details

Year Built
2012
Capacity
128
Meeting Rooms
No
Elevators
1
Casino
No
Registry
N/A
Restaurants
1
Disco
No
Tonnage
N/A
Bars
1
Fitness Center
Yes
Cabins
64
Pools
N/A
Children's Program
No
Wheelchair Accessible Cabins
N/A
Theaters
No
Internet Cafe
Yes
Shops
No
Library
No
Spa
Yes

Ship Categories

Royal Suite
Royal Suite - 300 sq. ft.    Wall-to-Wall Panoramic Window with Open-Air Balcony    Open-Air Balcony with full 6-person seating area    Full shower with glass door    Writing desk    Vanity    Bed    Toilet    Sofa    Coffee table    Double sinks
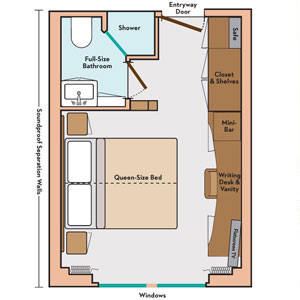
Panorama Suite
Located on the Royal Deck & Sapphire Deck (Forward & AFT)Suite features include:Comfort Collection BedsEgyptian super-combed cotton linensSoft & firm pillowsChoice of bed configurationBedside tables with reading lampsL'Occitane bath productsEasy under-bed luggage storageAlarm clockDirect-dial telephoneWell-stocked minibarIn-room safeElegant, contemporary designMarble countertops in bathroomUSB Ports6-person sitting areaWriting desk and chairSofaLuxurious mattress toppersEuropean-style duvetsExtra blanketsNightly turn-down serviceHairdryerSpacious 3-door closets with shelves for ample storageFlatscreen satellite TV with English-speaking channels & over 100 free movie optionsMake-up mirrorBathrobes & slippersComplimentary bottled waterIndividual climate controlLarge mirror in bathroomComplimentary Wi-FiWall-to-Wall Panoramic Window with Open-Air BalconyFull shower with glass doorVanity and lighted makeup mirrorCoffee table
Deluxe Stateroom
Located on the Indigo Deck (Forward & AFT)Suite features include:Comfort Collection BedsEgyptian super-combed cotton linensSoft & firm pillowsChoice of bed configurationBedside tables with reading lampsL'Occitane bath productsEasy under-bed luggage storageAlarm clockBathrobes & slippersComplimentary bottled waterIndividual climate controlLarge mirror in bathroomUSB PortsFull shower with glass doorVanity and lighted makeup mirrorLuxurious mattress toppersEuropean-style duvetsExtra blanketsNightly turn-down serviceHairdryerSpacious 3-door closets with shelves for ample storageFlatscreen satellite TV with English-speaking channels & over 100 free movie optionsDirect-dial telephoneWell-stocked minibarIn-room safeElegant, contemporary designComplimentary Wi-FiTwo windowsWriting desk and chair